1488 Main
Street
The Existing Conditions
The development site currently features an empty industrial building, which will be demolished to clear space for the upcoming multi-family complex. The surrounding area is a community that comprises retail establishments, along with a combination of single and multi-family residences. All of these are in close proximity to the proposed development.
The Development
After the existing structures have been removed and regulatory approvals have been obtained, the construction of a seven-story apartment complex will commence. This development is the first multi-family project in the area in decades and aims to provide contemporary, affordable housing options for local residents who wish to stay in their
neighborhood.
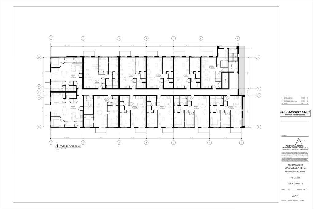
Situated on one of Winnipeg’s key north/south transportation routes, the site provides easy access to citywide bus transportation. The apartment complex will include 72 units in total, with 30 one-bedroom, 30 two-bedroom and 12 three-bedroom units available, ranging in size from 622 sq. ft. for one-bedroom units to 1,091 sq. ft. for two-bedroom units. This diverse range of unit sizes is expected to attract a mix of residents, from young single adults to senior empty nesters, fostering a sense of community within the building.
The development will provide ample parking, including 23 weather-protected stalls located beneath the building and 25 surface stalls to accommodate residents’ needs. Additionally, 28 secure bike parking stalls will be available.
1488 Main Street
Who We Are
The Developer
Ambassador Development is a fully integrated development company that offers a range of real estate solutions including commercial and multi-family development, property management, and real estate
consulting services. Over the past two decades, Ambassador Development and its affiliated real estate companies have been involved in numerous successful property developments in Canada.
The Architect

Affinity Architecture is a leader in value-driven design. We help boost return on investment for our clients who build and manage real-estate assets in Winnipeg and throughout Western Canada.
Affinity Architecture has a great deal of expertise in the design of multi-family residential projects. Our involvement throughout the development lifecycle helps owners to boost return on investment by making the highest and best use of their land.
The BUILDER

Bockstael Construction is a fourth-generation family business that has been building on the prairies for over a century. Our approach to construction is shaped by our experience and fueled by our vision for the future of construction. We deliver an exceptional customer experience through transparency and collaboration, and with a sense of urgency. It’s how we help our clients make informed decisions, provide solutions to their unique project needs, optimize the total cost of ownership, and establish an environment where everyone shares in mutual project success.
Contact Us
The Developer is seeking input from local area residents regarding the proposed development and would appreciate your feedback through the following survey.






